Support

Lorem ipsum dolor sit amet:

24h / 365days

We offer support for our customers

Mon - Fri 8:00am - 5:00pm (GMT +1)

Get in touch

Cybersteel Inc.
376-293 City Road, Suite 600
San Francisco, CA 94102

Have any questions?
+44 1234 567 890

Drop us a line
info@yourdomain.com

About us

Lorem ipsum dolor sit amet, consectetuer adipiscing elit.

Aenean commodo ligula eget dolor. Aenean massa. Cum sociis natoque penatibus et magnis dis parturient montes, nascetur ridiculus mus. Donec quam felis, ultricies nec.

Have any Questions? +01 123 444 555

Vinyes

CASA JANINI

SITUACIÓN:
Nàquera (Valencia)

FECHA:
2018

FASE:
Obra finalizada

CONSTRUCTOR:
Construcciones Hobrescon

COLABORACIONES:
José Luis Núñez Ten

 

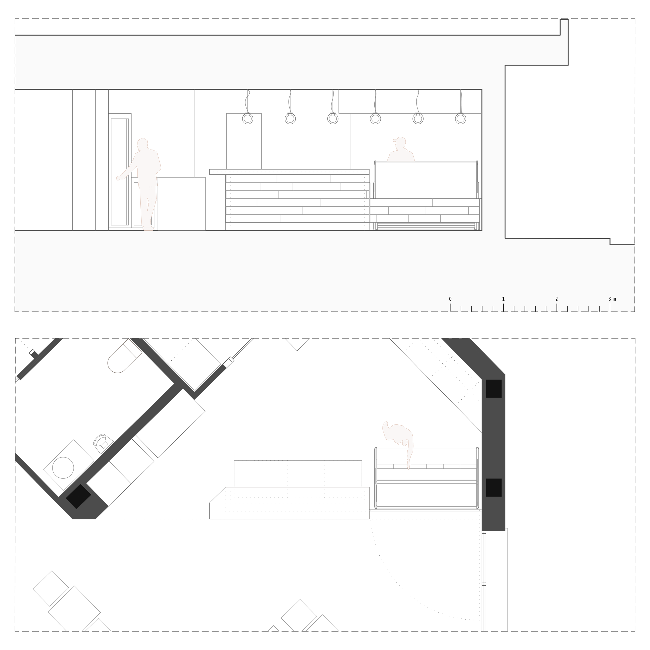
Estado previo

Se trata de un local existente, totalmente diáfano que cuenta con huecos acristalado y una altura libre acotada por la existencia de una piscina exterior en la planta superior.

Direccionalidad

El proyecto parte desde las dos funcionalidades presentes en una heladería: la zona de estancia y servicio en local y la zona de recogida de producto. Por esta premisa y utilizando las dos direcciones del local, se dispone la barra y zona de atención muy próxima al acceso para facilitar la opción de recogida y separar este flujo de los clientes de local.

Los diferentes elementos arquitectónicos de disponen siempre siguiendo las dos direcciones consiguiendo una regularización de un espacio trapezoidal.

Volver

Copyright 2026 Arquiquattro®. All Rights Reserved.